REQUEST A TOUR If you would like to see this home without being there in person, select the "Virtual Tour" option and your advisor will contact you to discuss available opportunities.
In-PersonVirtual Tour

$ 849,000
Est. payment /mo
Active
193 Bloor ST W Oshawa, ON L1J 1P5
UPDATED:
Key Details
Property Type Single Family Home
Sub Type Detached
Listing Status Active
Purchase Type For Sale
Approx. Sqft 700-1100
Subdivision Lakeview
MLS Listing ID E12903786
Style 1 Storey/Apt
Annual Tax Amount $3,445
Tax Year 2025
Property Sub-Type Detached
Property Description
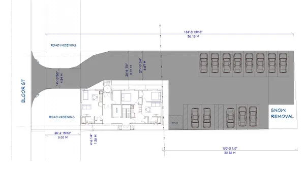
Location, Location, Location! Huge Opportunity To Hold For Future Investment Or Development. With R6-C Zoning Develop Into An Apartment Building, Long Term Care Facility, Nursing Home Or Retirement Home. Surrounded By Large High Rise Multi-family Properties. Currently Used As A 2 Bedroom, 2 Bathroom Home With 2nd Floor Bonus Room. **EXTRAS** Detached garage with power, newer gas furnace, 200 Amp service. Sold as-is-where-is. Some renovations required to make existing structure liveable.
Location
Province ON
County Durham
Area Durham
Rooms
Family Room No
Basement None
Kitchen 0
Interior
Interior Features None
Cooling None
Fireplace No
Heat Source Gas
Exterior
Parking Features Private
Garage Spaces 2.0
Pool None
Roof Type Shingles
Lot Frontage 60.0
Lot Depth 192.25
Total Parking Spaces 6
Building
Foundation Concrete
Others
ParcelsYN No
Listed by KELLER WILLIAMS ENERGY REAL ESTATE
NEARBY LISTINGS
GET MORE INFORMATION






