REQUEST A TOUR If you would like to see this home without being there in person, select the "Virtual Tour" option and your agent will contact you to discuss available opportunities.
In-PersonVirtual Tour

$ 3,999,999
Est. payment /mo
Price Dropped by $499K
1717 Brock ST S Whitby, ON L1N 4M7
UPDATED:
Key Details
Property Type Commercial
Sub Type Land
Listing Status Active
Purchase Type For Sale
Subdivision Port Whitby
MLS Listing ID E12550232
Annual Tax Amount $7,074
Tax Year 2025
Property Sub-Type Land
Property Description
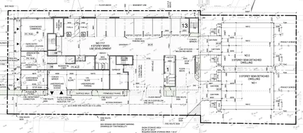
THIS SITE IS BEING OFFERED UNDER POWER OF SALE. Prime residential development opportunity - 55,166 sq. ft. total buildable area. Zoning Approved for Residential Mixed-Use on Brock St. S, currently at 2nd stage Site Plan submission with final approval possible in under 6 months. Pre-approval status allows purchaser to modify or enhance the plan, including potential for higher density consistent with Town of Whitby's Official Plan intensification policies and targets for Brock Street and Port Whitby areas. Versatile site ideal for condominium or purpose-built rental/apartment building. Strong ongoing demand for quality rental housing in Durham Region/GTA supports attractive long-term hold returns. Exceptional location in Port Whitby intensification zone - close to waterfront, downtown, GO Transit, highways (401/407/412), and amenities. Multiple high-rise/mixed-use projects approved and delivered nearby. Ideal for active builder/developer seeking near-shovel-ready project.
Location
Province ON
County Durham
Area Durham
Exterior
Utilities Available Yes
Lot Frontage 107.28
Lot Depth 309.0
Others
ParcelsYN No
Listed by RE/MAX REALTRON REALTY INC.
NEARBY LISTINGS
GET MORE INFORMATION






